パークヒルズ幸

種別/構造 貸店舗・事務所/鉄骨造
アクセス

仙台市地下鉄南北線/泉中央駅 徒歩7分

仙台市地下鉄南北線/八乙女駅 徒歩22分

仙台市地下鉄南北線/黒松駅 徒歩38分

所在地

宮城県仙台市泉区泉中央3丁目

location_on

グーグルマップでみる

open_in_new

詳細情報

details

物件名
パークヒルズ幸
所在地
宮城県仙台市泉区泉中央3丁目
アクセス

仙台市地下鉄南北線/泉中央駅 徒歩7分

仙台市地下鉄南北線/八乙女駅 徒歩22分

仙台市地下鉄南北線/黒松駅 徒歩38分

location_on

グーグルマップでみる

open_in_new
種別
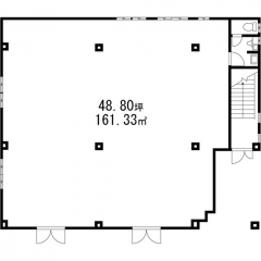
貸店舗・事務所
築年月
1995年11月
構造
鉄骨造
階建
地上2階
総戸数
-
管理
-
設備・条件
駐車場あり
備考
-

パークヒルズ幸で現在募集中の物件

Properties For Rent

その他の仙台市泉区周辺の物件

Related Property


mail

この物件を問い合わせ

arrow_forward