ひより台1丁目住居付店舗 1階
-
11.55 万円
-
- 管理費・共益費
- 0円
-
- 敷金
- 31.5万円
-
- 礼金
- 11.55万円
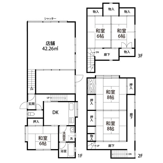
| 間取り | 事業/158.09m² |
|---|---|
| 階数 | 1階/3階建て |
| 種別/構造 | 貸店舗/木造 |
| アクセス |
富谷市民バス バス停『ひより台1丁目』から徒歩1分 |
| 所在地 |
宮城県富谷市ひより台1丁目 location_on
グーグルマップでみる open_in_new
|
| 築年月 | 1989年11月 |
2025年内装リフォーム済み☆
詳細情報
details
| 物件名 |
ひより台1丁目住居付店舗
|
||
|---|---|---|---|
| 所在地 |
宮城県富谷市ひより台1丁目
|
||
| アクセス |
富谷市民バス バス停『ひより台1丁目』から徒歩1分 location_on
グーグルマップでみる open_in_new
|
||
| 種別 |
貸店舗
|
築年月 |
1989年11月
|
| 間取り |
事業
|
間取り内訳 |
-
|
| 専有面積 |
158.09m²
|
||
| 方位 |
南向き
|
構造 |
木造
|
| 所在階/階建 |
1階/地上3階
|
||
| 賃料 |
11.55万円
|
管理費・共益費 |
なし
|
| 敷金 |
315,000円
|
礼金 |
115,500円
|
| 償却・敷引 |
-
|
保証会社 |
必加入
初回保証料賃料総額の100% |
| その他費用 |
-
|
||
| 契約期間 |
普通 2年間
|
引渡 |
相談
|
| 現況 |
空き
|
||
| 設備・条件 |
駐車場あり、駐車場1台無料、駐車場2台無料、駐車場2台以上、都市ガス、バス停徒歩3分以内、角部屋、南向き部屋、バス・トイレ別、洗面化粧台、押入れ、給湯、エアコン、駐車場無料、飲食店可
|
||
| リフォーム |
-
|
||
| 備考 |
●現況優先●保証会社要加入(初回保証料賃料総額の100%)●テナント保険要加入●軽飲食相談可●一棟貸し相談可●エアコンフィルタ自動掃除有り、無線LANで遠隔操作可能(無線LANアダプタ別売)
|
||
| 周辺施設 |
ひより台幼稚園:416m
セブンイレブン宮城富谷店:107m 佐藤病院:1194m 富谷市役所:1179m 富谷郵便局:803m 七十七銀行富谷支店:226m ドラッグヤマザワ杜のまち店:3412m B家具・アウトレットABCマツモ:296m |
駐車場 |
有
付無料 |
| 取引態様 |
専任
|
||
| 情報更新日 |
2026年05月03日
|
次回更新予定日 |
2026年05月17日
|
地図・周辺環境
Location
explore 周辺環境-
ひより台幼稚園まで416m
-
富谷郵便局まで803m
-
七十七銀行富谷支店まで226m
-
セブンイレブン宮城富谷店まで107m
-
B家具・アウトレットABCマツモまで296m
同じ建物で現在募集中の物件
Properties For Rent
その他の富谷市の事業の物件
Related Property