岩沼臨海工業センコー物流 1階
-
176 万円
-
- 管理費・共益費
- 0円
-
- 敷金
- 480万円
-
- 礼金
- 176万円
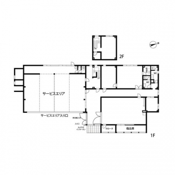
| 間取り | 事業/752.04m² |
|---|---|
| 階数 | 1階/2階建て |
| 種別/構造 | 貸事務所/軽量鉄骨 |
| アクセス |
仙台空港鉄道/仙台空港駅 徒歩42分 臨空循環バス バス停『空港南3丁目』から徒歩1分 東北本線/館腰駅 徒歩61分 |
| 所在地 |
宮城県岩沼市空港南3丁目 location_on
グーグルマップでみる open_in_new
|
| 築年月 | 2017年11月 |
駐車場最大80台契約可能☆
詳細情報
details
| 物件名 |
岩沼臨海工業センコー物流
|
||
|---|---|---|---|
| 所在地 |
宮城県岩沼市空港南3丁目
|
||
| アクセス | |||
| 種別 |
貸事務所
|
築年月 |
2017年11月
|
| 間取り |
事業
|
間取り内訳 |
-
|
| 専有面積 |
752.04m²
|
||
| 方位 |
南西向き
|
構造 |
軽量鉄骨
|
| 所在階/階建 |
1階/地上2階
|
||
| 賃料 |
176万円
|
管理費・共益費 |
なし
|
| 敷金 |
4,800,000円
|
礼金 |
1,760,000円
|
| 償却・敷引 |
-
|
保証会社 |
必加入
初回保証料賃料総額の100% |
| その他費用 |
-
|
||
| 契約期間 |
普通 2年間
|
引渡 |
相談
|
| 現況 |
空き
|
||
| 設備・条件 |
駐車場あり、電気
|
||
| リフォーム |
-
|
||
| 備考 |
●現況優先●保証会社要加入(初回保証料賃料総額の100%)●テナント保険要加入●駐車場80台契約可能●セコムセキュリティシステムあり
|
||
| 周辺施設 |
ココリコ:2005m
フーズガーデン玉浦食彩館:3159m スズキ記念病院:4604m 岩沼市役所:5844m 矢野目簡易郵便局:1450m JA名取岩沼玉浦支店:2287m マツモトキヨシ岩沼玉浦西店:3131m スーパービバホーム新名取店:5675m |
駐車場 |
有
4,400円 |
| 取引態様 |
専任
|
||
| 情報更新日 |
2026年05月18日
|
次回更新予定日 |
2026年06月01日
|
地図・周辺環境
Location
directions_walk アクセス- 仙台空港鉄道/仙台空港駅 徒歩42分・ 臨空循環バス バス停『空港南3丁目』から徒歩1分・東北本線/館腰駅 徒歩61分
その他の岩沼市の事業の物件
Related Property